kavárna • pražírna
na Letné hned u zastávky sedmnáctky
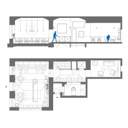
tři malé prostory propojené v jeden
✓ skočit si na dobrý kafe nebo nedělní snídani
✓ vidět v přímém přenosu, jak se praží káva
✓ zabořit se do pohovky a strávit tam odpoledne
spolupráce v rámci DDAANN
fotky od BoysPlayNice





⚐ Praha
✎ 2017 • realizováno
